Accueil
Agence
Réalisations
Contact
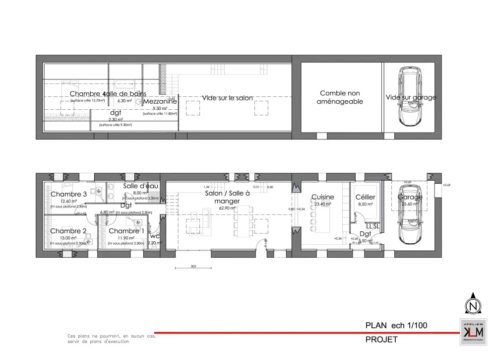
Maison en longueur
Neuf
Publié le:
27-03-2026
0,00
€
Retour
Neuf
Produits similaires
Neuf
Petite maison
Publié le :
27-03-2026
Neuf
Maison neuve
Publié le :
27-03-2026
Neuf
Maison neuve BY
Publié le :
27-03-2026